物件情報
倉敷市黒崎 南道路 新築建売住宅2号棟
【 新築一戸建て 】倉敷中心街へも程近い、住宅団地内のお買い求め易い建売住宅。南道路区画。
| 最寄駅 | 所在地 | 面積 | 築年月 | 価格 | 間取り |
|---|---|---|---|---|---|
JR山陽本線 倉敷駅 徒歩 32分 | 倉敷市黒崎288-8 | 土地/149.96㎡ 建物/107.65㎡ | 2024年12月 | 2,398 万円 | 5~ LDK |
中庄小学校・倉敷北中学校区。
最寄りのコンビニまで徒歩6分、スーパーまで徒歩10分、倉敷中央病院まで車で4分。
ごく平均的な構造躯体・建物性能・保証。この立地でこの価格で土地付き新築建物が購入出来るのなら納得。
物件写真・間取り
物件概要
| 物件名 | 倉敷市黒崎 南道路 新築建売住宅2号棟 |
|---|
| 交通機関 | JR山陽本線 倉敷駅 徒歩 32分 |
|---|
| 所在地 | 倉敷市黒崎288-8 |
|---|
| 価格 | 2,398 万円 |
|---|
| 間取り | 5~ LDK |
|---|
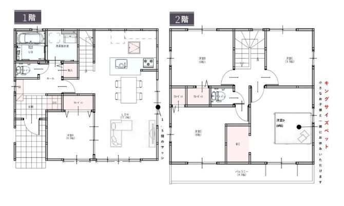
| 間取り詳細 | 1階:LDK17.2帖 洋間4.5帖 2階:洋間4.5帖×2部屋 洋間6帖 洋間8帖 W.I.C. |
|---|
| 土地権利 | 所有権 |
|---|
| 建築確認番号 | 2024岡セ確建第000633号 |
|---|
| 土地面積 | 149.96㎡ / 45坪 |
|---|
| 建物面積 | 107.65㎡ / 32坪 |
|---|
| 建物構造 | 木造 |
|---|
| 築年月 | 2024年12月 |
|---|
| 都市計画 | 市街化区域 |
|---|
| 用途地域 | 第一種低層住居専用地域 |
|---|
| 建ぺい率 | 50% |
|---|
| 容積率 | 100% |
|---|
| 駐車場 | 有 |
|---|
| 接道 |
|
|---|
| 地目 | 宅地 |
|---|
| 現況 | 完成済 |
|---|
| 引渡し | 即時 |
|---|
| 設備 | 公営水道・公共下水・電気・都市ガス |
|---|
| 備考 | 5LDK ケイアイスター不動産施工建物。 |
|---|
| 取引態様 | 一般 |
|---|
| 物件番号 | 219 |
|---|













