[会社概要]

株式会社倉敷中央不動産

〒7100846
岡山県倉敷市上富井494-6
086-454-7007
岡山県知事(2)第5648号
営業時間 9:00~18:00

物件情報

倉敷市片島町 築19年 リフォーム戸建

【 中古一戸建て 】2号線南の新興住宅団地内、南西の角地に建つリフォーム建物です。


最寄駅所在地面積築年月価格間取り

JR山陽本線 西阿知駅 徒歩 30分

倉敷市片島町938-1

土地/194.25㎡

建物/127.65㎡

2007年04月 2,940 万円 4 LDK

西阿知小学校・倉敷第一中学校区。

最寄りのコンビニまで徒歩4分、最寄りのスーパーまで徒歩17分、2号線側道まで車で2分。

中庭があるオシャレな建物。

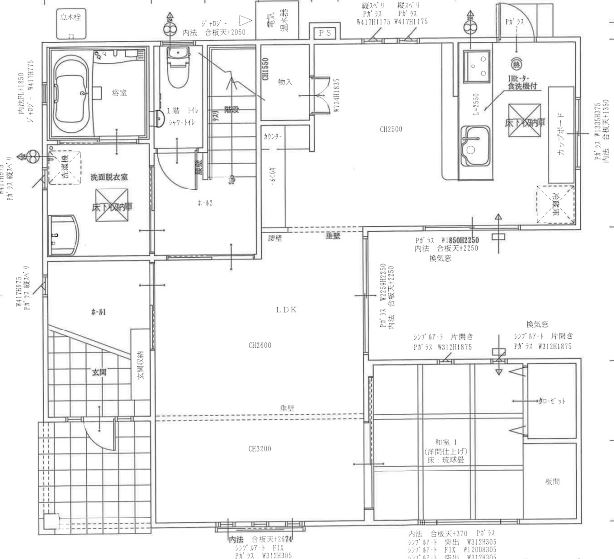
外壁洗浄・建物内壁紙張替・洗面所とトイレの床張替・設備(キッチン・トイレ・洗面・浴室・エアコン2台)新設。駐車場3台。駐輪場付き。

 

物件写真・間取り

現地写真
1階間取り
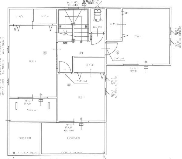
2階間取り

物件概要

物件名

倉敷市片島町 築19年 リフォーム戸建

交通機関

JR山陽本線 西阿知駅 徒歩 30分

所在地

倉敷市片島町938-1

価格

2,940 万円

間取り 4 LDK
間取り詳細

1階:LDK 和室 水廻   2階:洋室3部屋 トイレ

土地権利 所有権
土地面積

194.25㎡ / 58坪

建物面積

127.65㎡ / 38坪

建物構造 木造
築年月

2007年04月

都市計画 市街化区域
用途地域 準工業地域
建ぺい率

60%

容積率

200%

駐車場
接道
角地
方向:南側 道路幅員:3m 公道
方向:西側 道路幅員:6m 公道
地目 宅地
現況 居住中
引渡し 予定 2026年5月
設備公営水道・公共下水・電気・プロパンガス
備考リフォームして引渡。
「幹太くんDX」「マイクロバブル付エコジョーズ」「ガスファンヒーター3台(無料レンタル)」「中庭ウッドデッキ新設」
取引態様 一般
物件番号185

物件地図人型アイコンを地図上にドラッグするとストリートビューで表示されます。

倉敷市片島町 築19年 リフォーム戸建

倉敷市片島町938-1

地図を戻す

資料請求・お問い合わせ 周辺環境や諸条件など、少しのことでもお気軽にご相談ください 

物件名 【185】 倉敷市片島町 築19年 リフォーム戸建
お問い合わせ内容
お名前
電話番号
メールアドレス
確認のため同じアドレスをご入力ください。
備考欄ご希望の連絡方法、見学希望日、希望条件、質問などがございましたら、ご記入ください