物件情報
倉敷市西中新田 築11年 極上の中古住宅
【 中古一戸建て 】立地・住環境・建物の状態…どれを取っても上質の希少物件です。
| 最寄駅 | 所在地 | 面積 | 築年月 | 価格 | 間取り |
|---|---|---|---|---|---|
JR山陽本線 倉敷駅 徒歩 34分 総合市場前 徒歩8分 | 倉敷市西中新田463-26 | 土地/183㎡ 建物/108.47㎡ | 2014年09月 | 3,680 万円 | 4 LDK |
大高小学校・倉敷南中学校区。
最寄りのコンビニまで徒歩7分、最寄りのスーパーまで徒歩4分、倉敷セイジンビョウセンター病院まで車で4分。
新道から1本入った閑静な住宅団地。通り抜けも出来ないので住環境は守られています。で、周辺に買物施設・病院等充実した希少な立地条件。
建物もメーカー住宅の築11年。全体的に程度も良いです。
この周辺の新築住宅は高騰しているので、この年式の戸建がこの価格はお買い得です。
物件写真・間取り
物件概要
| 物件名 | 倉敷市西中新田 築11年 極上の中古住宅 |
|---|
| 交通機関 | JR山陽本線 倉敷駅 徒歩 34分 総合市場前 徒歩8分 |
|---|
| 所在地 | 倉敷市西中新田463-26 |
|---|
| 価格 | 3,680 万円 |
|---|
| 間取り | 4 LDK |
|---|
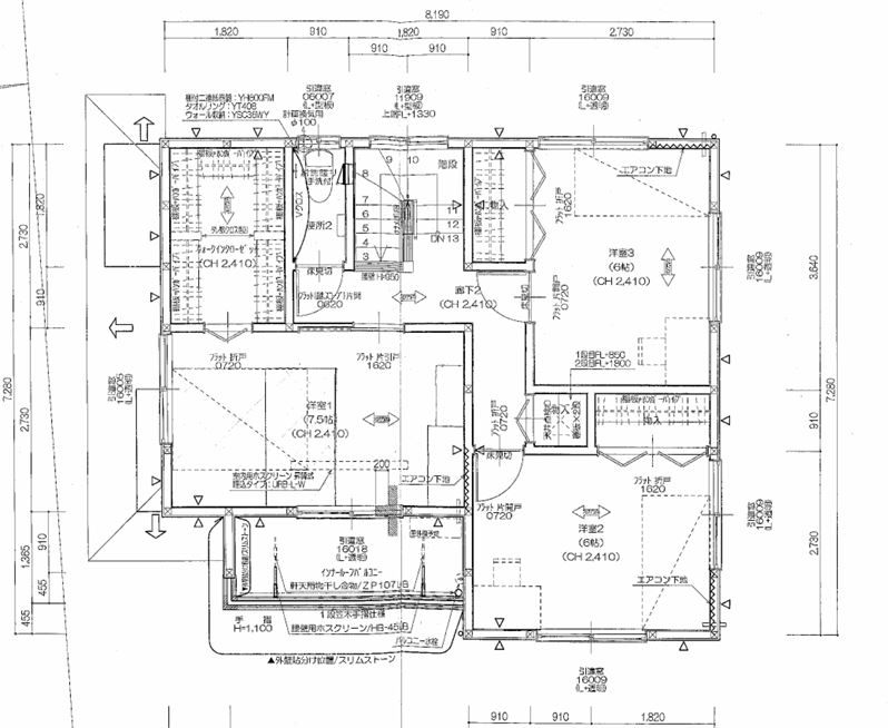
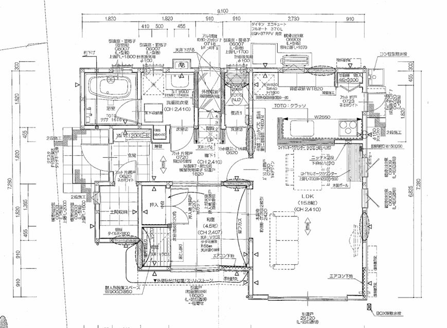
| 間取り詳細 | 1階:LDK15.8帖 和室6帖 2階:子供部屋6帖×2部屋 主寝室7.5帖 W.I.C |
|---|
| 土地権利 | 所有権 |
|---|
| 土地面積 | 183㎡ / 55坪 |
|---|
| 建物面積 | 108.47㎡ / 32坪 |
|---|
| 建物構造 | 木造 |
|---|
| 築年月 | 2014年09月 |
|---|
| 都市計画 | 市街化区域 |
|---|
| 用途地域 | 第一種住居地域 |
|---|
| 建ぺい率 | 60% |
|---|
| 容積率 | 200% |
|---|
| 駐車場 | 有 |
|---|
| 接道 |
|
|---|
| 地目 | 宅地 |
|---|
| 現況 | 空 |
|---|
| 引渡し | 相談 |
|---|
| 設備 | 上水道・公共下水・電気(オール電化) |
|---|
| 備考 | 現状有姿渡し。エアコン2台付。 売主による引渡後の契約不適合責任は免責。 引渡前にハウスクリーニング実施予定。 敷地の一部が都計道予定有(未実施)。 |
|---|
| 取引態様 | 専任 |
|---|
| 物件番号 | 176 |
|---|
































